Lábatlan Város Önkormányzata hosszú ideje elkötelezett a környezeti értékek védelme és a fenntartható fejlődés iránt. Most újabb mérföldkőhöz érkezett: egy jelentős határon átnyúló zöldinfrastruktúra-fejlesztési projekt indult el, amelynek célja a település zöldfelületeinek komplex megújítása.
A „Kastélyparkok Ürményen és Lábatlanon” (Castleparks in Mojmírovce and Lábatlan, #replantparks, kódja: HUSK/2302/1.2/094) című kezdeményezés az Interreg VI-A Magyarország–Szlovákia Együttműködési Program keretében valósul meg. Az Európai Regionális Fejlesztési Alap összesen 1.519.697,40 euró támogatást nyújt a projekthez, ebből 985.045,40 euró Lábatlan projekttevékenységeire kerül felhasználásra. A projekt befejezése 2026 júniusára várható.
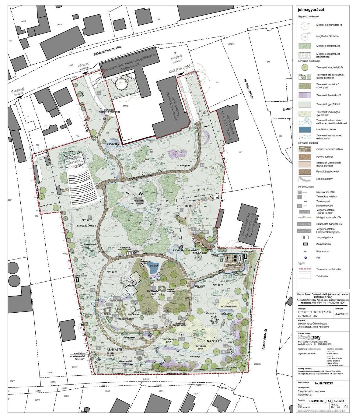
A projekt célja a városi zöldterületek revitalizációja, a klímaváltozáshoz való alkalmazkodás elősegítése, a mikroklíma javítása, valamint a környezeti szemléletformálás. A fejlesztések Lábatlan két jelentős közterületére terjednek ki: a városközpontban található történelmi Gerenday Kertre, valamint a Duna-partra.
A Gerenday Kert átfogó revitalizáción esik át. A terület megtisztul az elvadult növényzettől, új sétányok és pihenőhelyek létesülnek, korszerű öntözőrendszerrel, napelemes világítással és környezetbarát kertészeti megoldásokkal. A kertbe őshonos fák, cserjék, virágos gyepfelületek, valamint fűszerkert kerül telepítésre. Információs táblák és szemléletformáló elemek segítik a látogatókat a fenntartható kertgazdálkodás megismerésében. A város egyik legkedveltebb közterülete, a Duna-part is megújul. A fejlesztések során új zöldfelületek, virágzó növényfoltok, fák, bokrok, pihenőhelyek és akadálymentes sétányok jönnek létre. A cél az ártéri növényzet megóvása, a vízmegtartó képesség javítása és a természetközeli kikapcsolódási lehetőségek bővítése – különös figyelemmel a beporzók védelmére és az oktatásra. A projekt fontos eleme a közösség aktív bevonása. Önkéntes napok, kertészeti bemutatók, fa- és növényismereti foglalkozások, valamint háztartási környezetvédelemről szóló előadások várják az érdeklődőket, hozzájárulva a szemléletformáláshoz és az élhetőbb környezet kialakításához.
A projekt szlovákiai partnere a Mojmír Alapítvány (Nadácia Mojmír), amely a 18. század végén épült Ürményi kastély parkját újítja fel. A történelmi angolpark több száz éves hársaknak, védett növényfajoknak és értékes tájképi elemeknek ad otthont, és egyben a régió egyik legismertebb kulturális és természeti látványossága. A fejlesztés célja, hogy a park visszanyerje esztétikai és ökológiai értékeit, miközben megfelel a mai kor közösségi és környezeti elvárásainak – mindezt úgy, hogy történelmi karakterét és egyediségét is megőrzi.
A fejlesztések a határ két oldalán közös alapokon nyugszanak: mindkét partner célja a természeti örökség megóvása, a zöldfelületek fenntartható fejlesztése, és a helyi közösségek aktív bevonása. A projekt nemcsak fizikai környezetet formál, hanem szemléletet is – a természetközpontú gondolkodás, a tapasztalatcsere és a közösségi részvétel révén mintát kínál más települések számára is. A határon átnyúló együttműködés megalapozza a partnerek jövőbeli közös együttműködését, és hosszú távon is biztosítja a kialakított értékek megőrzését.
Az Interreg Magyarország–Szlovákia Programról további információkért látogasson el a www.interreghusk.eu weboldalra.

